Réalisation de plans pour construction d'une maison individuelle à Beausoleil

14-10-2025

Réalisation de plans pour construction d'une maison individuelle à Beausoleil

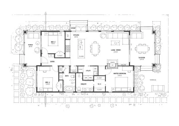
La réalisation de plans pour construction d'une maison individuelle à Beausoleil demande une expertise pointue pour garantir un projet conforme aux normes et aux attentes du client. Forte de plus de 25 ans d’expérience, B.E.T. PETILLOT assure un accompagnement complet et rigoureux, de la conception des plans à leur validation technique. Chaque projet est traité avec sérieux et réactivité, en tenant compte des contraintes architecturales et environnementales spécifiques à la région.

L’entreprise de diagnostic immobilier à Beausoleil met ses compétences au service des particuliers souhaitant concevoir une maison parfaitement adaptée à leur terrain. Grâce à la certification AFAQ, la société garantit des prestations fiables et précises, réalisées selon les exigences réglementaires et techniques en vigueur.

Des plans sur mesure pour une construction réussie

Chaque maison individuelle est unique, c’est pourquoi la conception des plans repose sur une étude détaillée et personnalisée. L’expérience et la méthodologie de B.E.T. PETILLOT permettent d’assurer la cohérence entre les aspects techniques, esthétiques et pratiques du projet, pour un résultat durable et de qualité.

  • Étude de faisabilité : analyse du terrain et des contraintes réglementaires avant la conception des plans définitifs.
  • Plans techniques détaillés : documents précis facilitant la coordination entre les différents corps de métier lors du chantier.
  • Certification AFAQ : un gage de qualité et de fiabilité reconnu dans le domaine du diagnostic et de la maîtrise d’œuvre.

Pour concrétiser votre projet immobilier dans les meilleures conditions, demandez dès maintenant un devis gratuit réalisation de plans pour construction d'une maison individuelle à Beausoleil et bénéficiez d’un accompagnement professionnel et certifié.

 

Vous souhaitant une agréable visite, si vous avez besoin d'un complément d'information concernant votre Entreprise de diagnostic immobilier à Beausoleil prenez contact dès à présent.